Горизонтальный отстойник (илоуловитель)

Горизонтальный отстойник (илоуловитель)

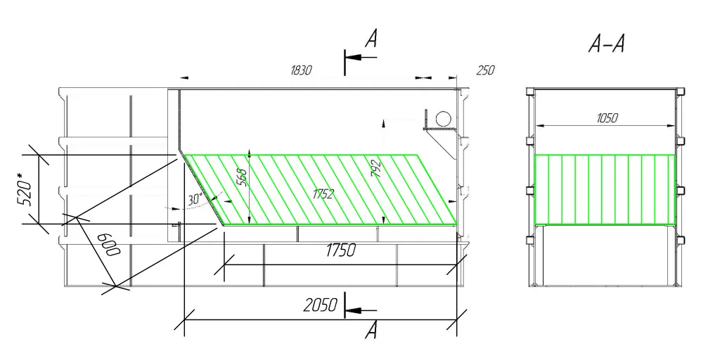
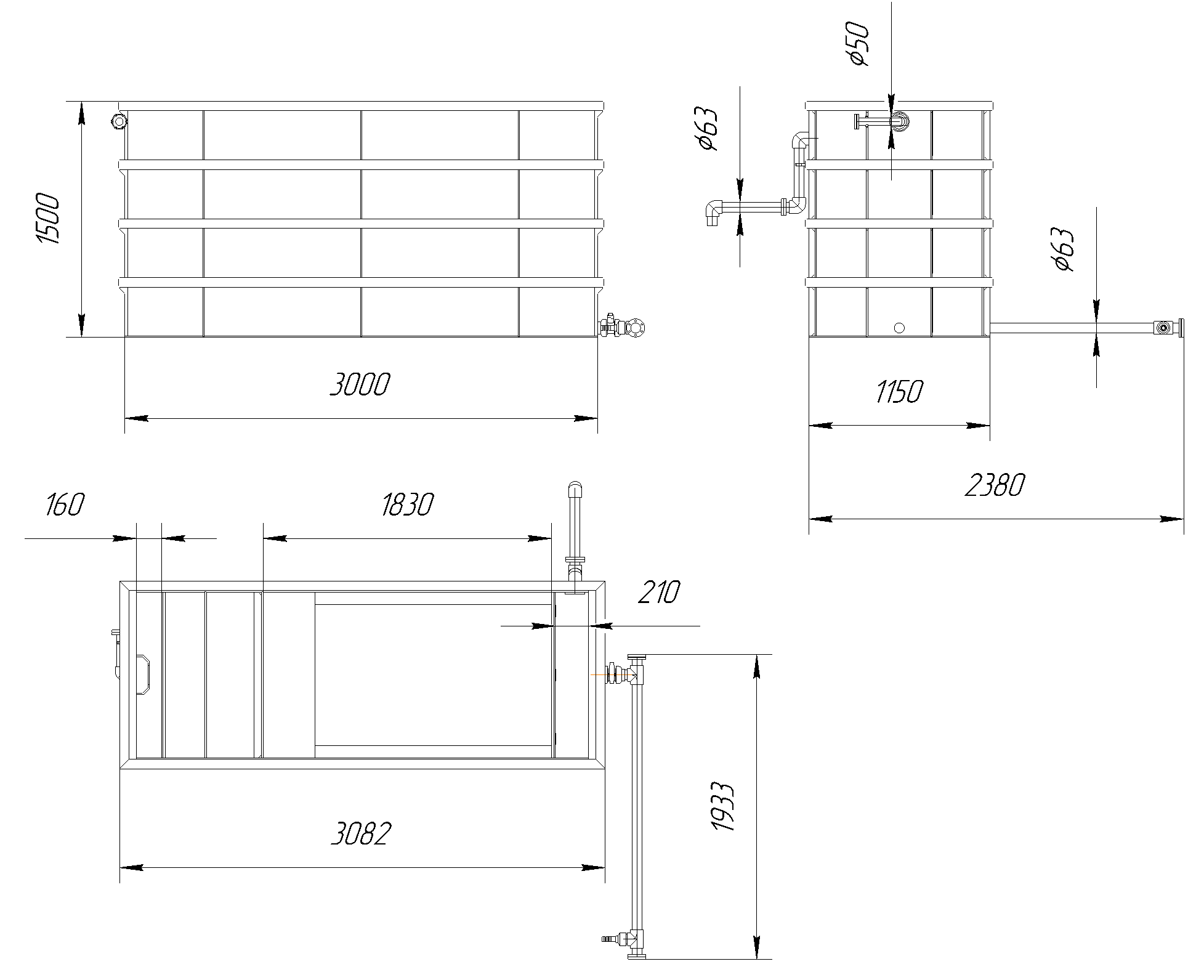
Отстойник тонкослойный горизонтальный (илоулавливатель).

Отстойник тонкослойный горизонтальный предназначен для отстаивания водной взвеси после реагентной очистки сточной воды с целью отделения нерастворимых соединений выпадающих в осадок, при очистке воды. Конструктивно, это емкость, оборудованная трубопроводами подачи и слива жидкости, а также полимерными ячейками, для улавливания загрязнений. Изделие обеспечивает безопасную работу на участке очистных сооружений (участке гальванопокрытий).

При разработке конструкторской документации учитывались требования ГОСТ 16310-80, сертификат соответствия №РОСС RU.32748.04ЭП30.ОС16. Изделие прошло технические испытания на стенде изготовителя.

Отстойник тонкослойный горизонтальный должен размещаться на специальных участках и в цехах заводов и промышленных предприятий, оборудованных приточной и вытяжной вентиляцией, водопроводом, канализацией, силовыми щитами, соответствующими Правилам техники безопасности и производственной санитарии при производстве металлопокрытий, правилам использования электроустановок. Помещение, в котором используется изделие, должно быть обеспечено общеобменной вентиляционной системой.

Отстойник тонкослойный горизонтальный выпускается в климатическом исполнении – УХЛ, категории-4,2 для работы в районах с умеренным и холодным климатом, в капитальных помещениях, при отсутствии воздействия прямой солнечной радиации и атмосферных осадков, ветра, песка и пыли наружного воздуха по ГОСТ 15150-69.

Требования к запыленности атмосферы и ее составу должны соответствовать группе условий эксплуатации -1, типу атмосферы –II по ГОСТ 15150-69.

Условия эксплуатации:

- диапазон температур помещения эксплуатации, °С от+10 до +35;

- относительная влажность, % не более 80 при 25° С;

- атмосферное давление, кПа от 84 до 106,7.

 

Сопутствующее и похожее оборудование