Маслоуловитель

Маслоуловитель

Маслоуловитель.

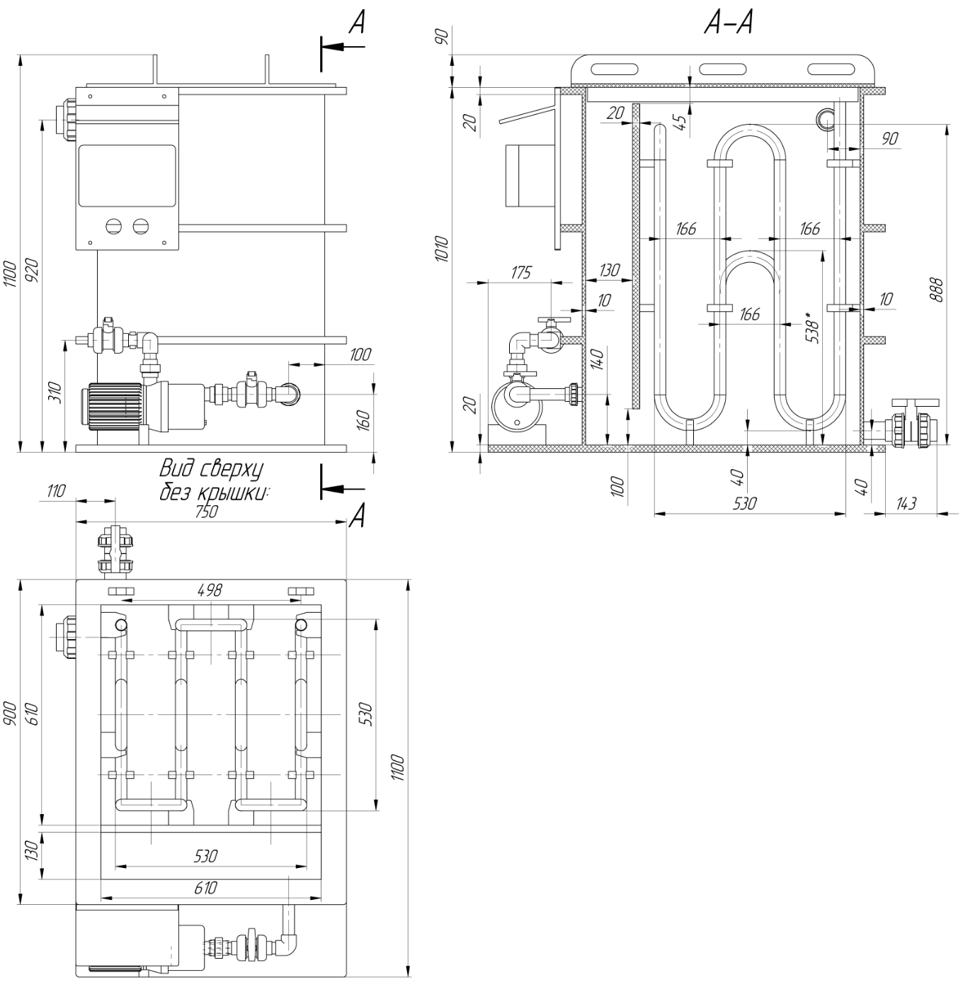
Маслоуловитель предназначен для очистки  технологических ванн в составе гальванической линии от масла, на поверхности технологических растворов (зеркале ванны). Изделие обеспечивает безопасную работу на участке гальванопокрытий.

Конструктивно маслоуловитель представляет собой емкость, оборудованную вспомогательными системами нагрева и циркуляции раствора. При изготовлении Изделия учитывались требования ГОСТ 16310-80 «Соединения сварные из полиэтилена, полипропилена и винипласта». Изделие прошло технические испытания на стенде изготовителя. Работа маслоуловителя обеспечивается за счет циркуляции раствора в контуре состоящем из маслосборного кармана ванны, маслоуловителя и технологического трубопровода с насосом. Раствор с маслом стекает в маслоуловитель из маслозборного кармана. После разделения масла и рабочего раствора. Очищенный раствор возвращается в ванну.

Маслоуловитель должен размещаться на специальных участках и в цехах заводов и промышленных предприятий, оборудованных приточной и вытяжной вентиляцией, водопроводом, канализацией, силовыми щитами, соответствующими Правилам техники безопасности и производственной санитарии при производстве металлопокрытий, правилам использования электроустановок. Помещение, в котором используется изделие, должно быть обеспечено общеобменной вентиляционной системой.

 

Сопутствующее и похожее оборудование