Ванна электрохимического обезжиривания

Ванна электрохимического обезжиривания

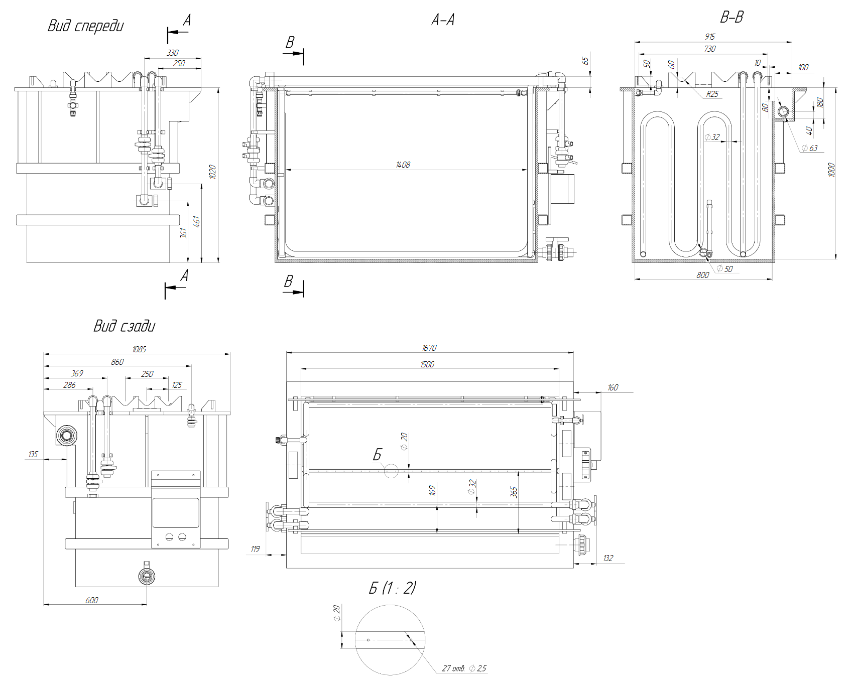
Ванна электрохимического обезжиривания.

Ванна электрохимического обезжиривания предназначена для предварительного обезжиривания поверхности обрабатываемых деталей электрохимическим способом. Изделие обеспечивает безопасную работу на участке гальванопокрытий, при соблюдении правил и требований настоящего паспорта.

При разработке конструкторской документации изделия, учитывались требования ТУ 28.49.12-002-29983928-2024. 

Ванна электрохимического обезжиривания соответствует нормативным требованиям ТРТС 010 О безопасности машин и оборудования, регистрационный номер декларации о соответствии ЕАЭС N RU Д-RU.РА11.В.64345/24.

Изделие прошло технические испытания на стенде изготовителя.

Ванна электрохимического обезжиривания должна размещаться на специальных участках и в цехах заводов и промышленных предприятий, оборудованных приточной и вытяжной вентиляцией, водопроводом, канализацией, силовыми щитами, соответствующими Правилам техники безопасности и производственной санитарии при производстве металлопокрытий, правилам использования электроустановок. Помещение, в котором используется изделие, должно быть обеспечено общеобменной вентиляционной системой.

Ванна электрохимического обезжиривания выпускается в климатическом исполнении – УХЛ, категории-4,2 для работы в районах с умеренным и холодным климатом, в капитальных помещениях, при отсутствии воздействия прямой солнечной радиации и атмосферных осадков, ветра, песка и пыли наружного воздуха по ГОСТ 15150-69.

Требования к запыленности атмосферы и ее составу должны соответствовать группе условий эксплуатации -1, типу атмосферы –II по ГОСТ 15150-69.

Условия эксплуатации:

- диапазон температур помещения эксплуатации, °С от+10 до +35;

- относительная влажность, % не более 80 при 25° С;

- атмосферное давление, кПа от 84 до 106,7.

Сопутствующее и похожее оборудование