Гальванические ванны холодной каскадной промывки

Гальванические ванны холодной каскадной промывки

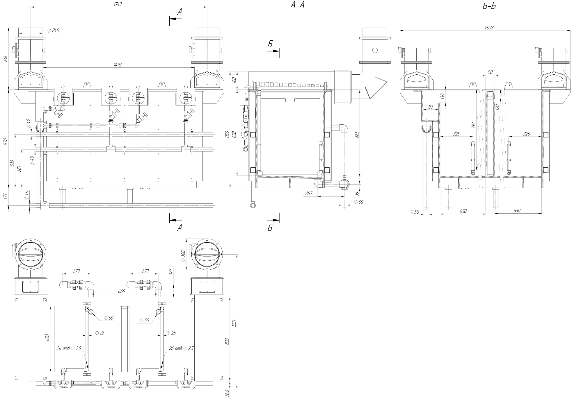
Ванна холодной каскадной промывки.

Ванна холодной каскадной промывки предназначена для промывки деталей после различных технологических операций. Наличие двух промывных каскадов обеспечивает улучшение качества промывки и снижение расхода воды. Изделие обеспечивает безопасную работу на участке гальванопокрытий, при соблюдении правил и требований настоящего паспорта.

При разработке конструкторской документации изделия, учитывались требования ТУ 28.49.12-002-29983928-2024. 

Ванна холодной каскадной промывки соответствует нормативным требованиям ТРТС 010 О безопасности машин и оборудования, регистрационный номер декларации о соответствии ЕАЭС N RU Д-RU.РА11.В.64345/24.

Изделие прошло технические испытания на стенде изготовителя.

Ванна холодной каскадной промывки должна размещаться на специальных участках и в цехах заводов и промышленных предприятий, оборудованных приточной и вытяжной вентиляцией, водопроводом, канализацией, силовыми щитами, соответствующими Правилам техники безопасности и производственной санитарии при производстве металлопокрытий, правилам использования электроустановок. Помещение, в котором используется изделие, должно быть обеспечено общеобменной вентиляционной системой.

Ванна холодной каскадной промывки выпускается в климатическом исполнении – УХЛ, категории-4,2 для работы в районах с умеренным и холодным климатом, в капитальных помещениях, при отсутствии воздействия прямой солнечной радиации и атмосферных осадков, ветра, песка и пыли наружного воздуха по ГОСТ 15150-69.

Требования к запыленности атмосферы и ее составу должны соответствовать группе условий эксплуатации -1, типу атмосферы –II по ГОСТ 15150-69.

Условия эксплуатации:

- диапазон температур помещения эксплуатации, °С от+10 до +35;

- относительная влажность, % не более 80 при 25° С;

- атмосферное давление, кПа от 84 до 106,7.

Сопутствующее и похожее оборудование