Очистные сооружения для линии цинкования проточного типа

Очистные сооружения для линии цинкования проточного типа

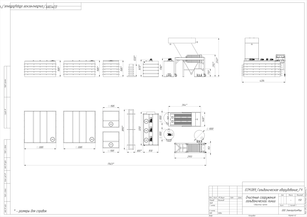
Очистные сооружения для гальванических линий цинкования. 


Предназначены для очистки сточных вод и концентратов рабочих растворов гальванических линий цинкования. Для концентратов предусмотрены накопительные емкости, накопленные концентраты обрабатываются постепенным дозированием в общие сточные воды. Вся вода за исключеним стоков с 6 валентным хромом обрабатывается в непрерывном режиме (очистные сооружения проточного типа). Стоки с 6-валентным хромом предварительно обрабатываются для восстановления хрома до 3-валентного. 
Вода вместе с дозированными в нее концентратами и предварительно обработанными хромистыми стоками, непрерывно поступает из накопительной емкости для стоков в рН-реактор, где в автоматическом режиме, устанавливается рН оптимальный для осаждения металлов. Далее стоки  проходят через флокулятор, в котором происходит дозирование флокулянта и перемешивание в ламинарном потоке без разрушения структуры образующихся флокул, после чего стоки поступают в тонкослойный фильтр. В тонкослойном фильтре осадок оседает в нижней части конструкции, а осветленная вода переливается в приемный карман и далее в емкость финишного разведения, через угольный фильтр. При обслуживании тонкослойного фильтра, осадок удаляется с помощью фильтр пресса. 
 


Комплект поставки 


1. Емкость для финишного разведения стоков с угольным фильтром- 1 шт. 
2. Емкость накопительная для стоков  - 1 шт. 
3. Емкость для хромистых стоков  - 1 шт. 
4. Емкость для хромистых концентратов  - 1 шт. 
5. Флокулятор - 1 шт. 
6. рН-реактор. 
7. Тонкослойный фильтр - 1 шт. 
8. Фильтр-пресс -  1 шт. 
9. Приемная емкость фильтр-пресса с фильтром тонкой очистки. 
10. Емкость для кислых концентратов.
11. Емкость для щелочных концентратов. 

Сопутствующее и похожее оборудование