Сушило для гальваники с откидным столом

Сушило для гальваники с откидным столом

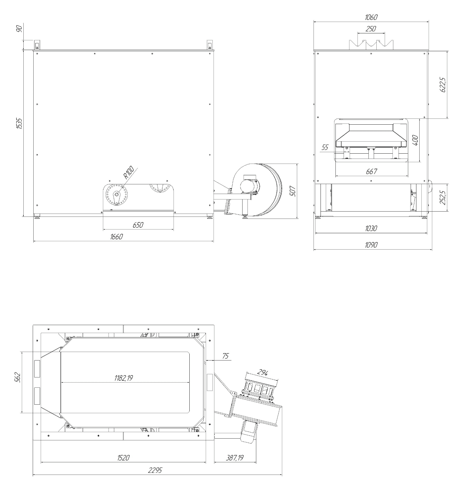
Сушило для гальваники с откидным столом.

Сушило для гальваники с откидным столом может быть смонтировано в составе гальванической линии и обеспечивает сушку деталей после нанесения покрытия и промывки в гальванических барабанах. Открытый барабан устанавливается в сушило. При включении вращения барабана детали высыпаются на откидной стол расположенный на дне сушила. Стол оборудован пневмовибратором для встряхивания деталей. Сквозь перфорацию стола нагнетается теплый воздух, что обеспечивает быстрое высыхание деталей. После завершения цикла сушки, стол наклоняется с помощью встроенных в сушило пневмоцилиндрах, и детали высыпаются в технологическую тару через боковое отверстиие в стенке сушила.

Изделие прошло технические испытания на стенде изготовителя.

Сушило для гальваники с откидным столом должен размещаться на специальных участках и в цехах заводов и промышленных предприятий, оборудованных приточной и вытяжной вентиляцией, водопроводом, канализацией, силовыми щитами, соответствующими Правилам техники безопасности и производственной санитарии при производстве металлопокрытий, правилам использования электроустановок. Помещение, в котором используется изделие, должно быть обеспечено общеобменной вентиляционной системой.

 

Сопутствующее и похожее оборудование